works 25.11.18

目黒のすまい

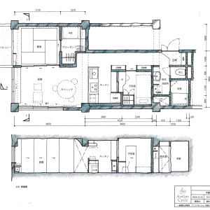
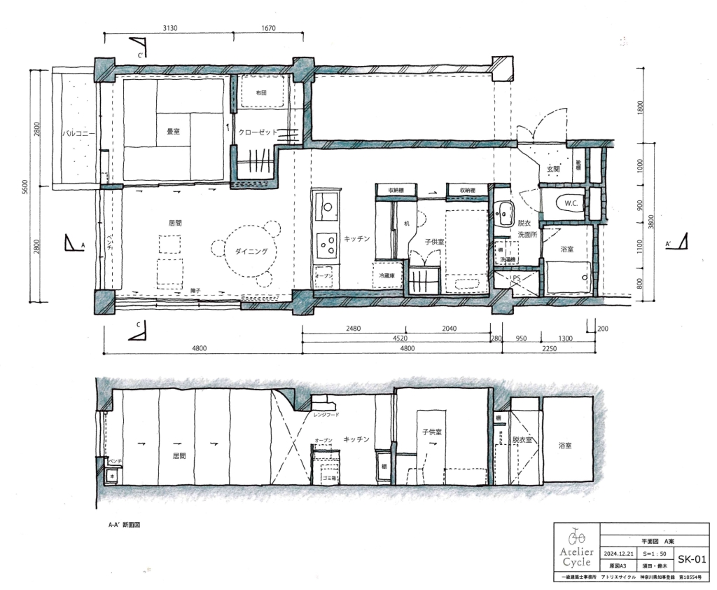
東京都目黒区の築50年を超えるビンテージマンションの改修です。

ここには夫婦2人と子供の家族3人が暮らします。
日当たりと眺めがとても良いので、部屋を細切れにせず、空間全体が緩やかに繋がるように設計しました。
窓辺のソファに座ると居間・畳室・ダイニング・台所・子供室が見渡せます。
夜は引き戸を引いて、畳室が寝室になります。

水回りのお直しは必要最小限に留めて予算の調整を行いました。
キッチンはもともと付いていた既製品に少しだけ手を入れて、部屋の雰囲気を損なわないように。
すっきりとした暮らしができるように納戸は広めに確保しています。

クライアントのWさんのシンプルで丁寧な暮らしに寄り添った改修となりました。

建物概要 マンションリノベーション 延べ床面積54㎡